文章概覽
|建案推薦度
★★★★☆ (4.5/5顆星)
|你必須買這個建案的理由
英日泰開發商與五星級酒店管理集團聯手巨獻、近科學教育館與聯合國教科文組織
|你可能要多加考慮的缺點
你喜歡年輕時尚或是狂野風格更勝於經典大氣的歐式典雅社區
|地段

|建案資料
✠ 基地位置:1199 Sukhumvit Rd, Khwaeng Khlong Tan Nuea, Khet Watthana, Bangkok 10110
✠ 基地面積:約 4,072 Sq.m.
✠ 建案型態:一棟45 層樓住宅大樓(地下2 層+地上45 層)
✠ 總戶數:311 戶
✠ 停車位:311 (100%)
✠ 產權:永久產權 Freehold
✠ 總價:1,134萬泰銖起
✠ 完工:2022年Q2
|開發商資料

【Grand Star Company Limited】
由泰國與日本三大領導品牌: Grande Asset Hotels & Property Pcl.、 Sumitomo Forestry Co., Ltd.、Property Perfect Pcl.跨國聯手組成。
↪【Grande Asset Hotels & Property Pcl.】
泰國知名五星飯店管理及投資上市集團,聚焦於興建及投資5 星級飯店及高端公寓,像是Marriot International、Hyatt International Group 等。除飯店業外,Grande Asset 同時也經營不動產開發,偏好在精華地段且鄰近大眾運輸設施之黃金地點上建造高端住宅項目。

↪【Sumitomo Forestry Co., Ltd. 住友林業】
住友林業為日本極具影響力的林業品牌,企業發跡於林木相關產業,其後拓展至木材生產、木造建築、建材生產、住宅規劃、不動產開發等,集團規模龐大。旗下住宅事業及生活服務事業深得日人肯定,企業歷史將近330 年。

↪【Property Perfect Pcl.】
為跨國集團合資創立之上市公司(英日泰),以土地開發、住宅建造為事業核心。其在曼谷主要經營公寓開發及不動產買賣。
|公共設施
✠ 接待櫃台、迎賓 大廳
✠ 貴賓儲藏室/智慧置物櫃 、
✠ 超跑停車區
✠ 電動車充電站
7th Floor
✠ 玻璃屋
✠ Hyde花園
✠ Tea Lounge
✠ Grand Lounge
✠ 共享工作空間、閱覽室
✠ 兒童遊戲室、電影室
✠ SPA & Salon、美甲室
29th
✠ 空中花園
39th — 41st
✠ 健身空間、桑拿室、 瑜珈室
✠ 高爾夫模擬練習室
✠ Grand gym、 溫控兒童池
✠ 360度 環景空中泳池
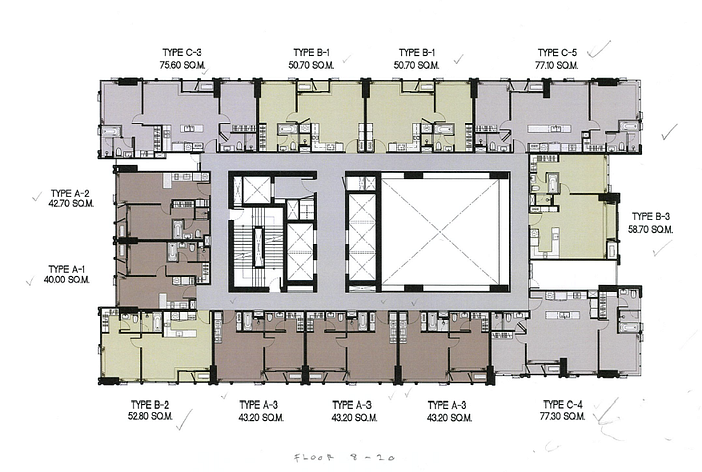
|格局與房型
1房1衛:40.00–58.70 平方米
2房2衛:68.10–86.60 平方米
3房3衛:112.00–187.00 平方米
3房以上:235.00-358.00 平方米




|Jullian專業分析與建議
Thonglor(東羅站)這區域一直以來就是知名的國際商務人士以及日本人聚落區,生活品質高、機能性也強,有許多的飯店和具有特色的購屋商場坐落此處。就在離 The Hyde Heritage Thonglor不遠的地方就有知名的Gateway百貨,裡面有非常多厲害的日本餐廳及茶鋪。
The Hyde Heritage Thonglor在這區非常具有頂級的代表性,如果說同樣在Sukhumvit路上不遠的BEATNIQ是性價比最高的頂尖社區,那麼The Hyde Heritage Thonglor可以說是近兩年在這一區Sukhumvit路的高檔豪宅裡執牛耳的建案項目了。



而The Hyde Heritage Thonglor所在的精確地點除了有這日本人生活聚落及百貨公司、特色商場之外,更特殊的是建案社區的正對面即是曼谷最知名的科學教育中心(如果用台北來看就是位於士林的科學教育館),有不少的學校以及國際科學教育相關組織都位於此處,更包含東南亞區域的教育部門以及聯合國教科文組織大樓,說是泰國的科學教育重鎮也不為過。


重視教育的泰國社會菁英都是這地區的重要住戶、租客以及未來轉手購買的對象,所以在挑選The Hyde Heritage Thonglor這個案件的時候,兩房及三房會是意外不錯的選擇。
科學教育館在寒暑假時也會有許多的學校營隊來到此處觀摩,不乏知名的國際學校以及國際性的科學教育活動,讓這個地方成為曼谷重要的置產地區以及歷久不衰的交易熱點。


此外值得一提的是,在The Hyde Heritage Thonglor旁便巷子裡就有一家非常知名的餐廳,許多的曼谷婚禮都在這裡舉辦,這家叫 The Gardens的餐廳還有養許多有趣的寵物,甚至有白孔雀!

The Hyde Heritage Thonglor由經營包含希爾頓飯店在內許多知名五星級飯店管理品牌的Grande Asset攜手住友林業以及Perfect Property所打造,在品質上絕對無庸置疑。
在室內裝潢部分也採挑高格局,搭配頂級的家電家具設備,部分櫃子與空間設計採內嵌式,有效節省空間浪費打造更好的生活居家環境。
而許多房型特別針對景觀部分做設計,大片落地窗以及多面向的景觀開窗,讓住戶可以享有最好的曼谷市區美景。
公設部分設計不少歐美風格的茶室、會客廳等,以及藝術色彩濃厚的高級雕塑與銅像,將整個社區打造成宛若住在五星級飯店的居住體驗,Lobby也採用仿飯店大廳的設計,也確定會有國際級的物業管理服務進駐。





如果說今天要避稅置產,或是在曼谷配置一套高等級住宅的話,The Hyde Heritage Thonglor絕對是不容錯過的頂尖項目,由於其地點的優勢以及本身建案等級的口碑,在未來增值的潛力以及轉手容易度上絕對都是屬一屬二的AA級投資物件。
The Hyde Heritage Thonglor在2019年9月21、22日於台北文華東方舉辦下午茶宴作為台灣地區發表會活動。
第一時間關注更多的泰國建案資訊:
購買泰國/澳洲房產,我來協助!
國際知名房仲品牌Century21加盟團隊,德寶地產長年深耕泰國澳洲,並在當地有直營物業管理協助售後服務。
Jullian任職多年,專業可靠,頂尖團隊為超過百位貴賓順利購置海外不動產。
立即報名!近期講座與說明會:https://superjullian.com/apply/
搶 泰國特價/砍價拋售戶:https://www.facebook.com/groups/239965770239854/
國際房產新聞資訊粉絲專頁:https://www.facebook.com/Superjullian21
Last Updated on 2021 年 11 月 27 日 by Jullian



